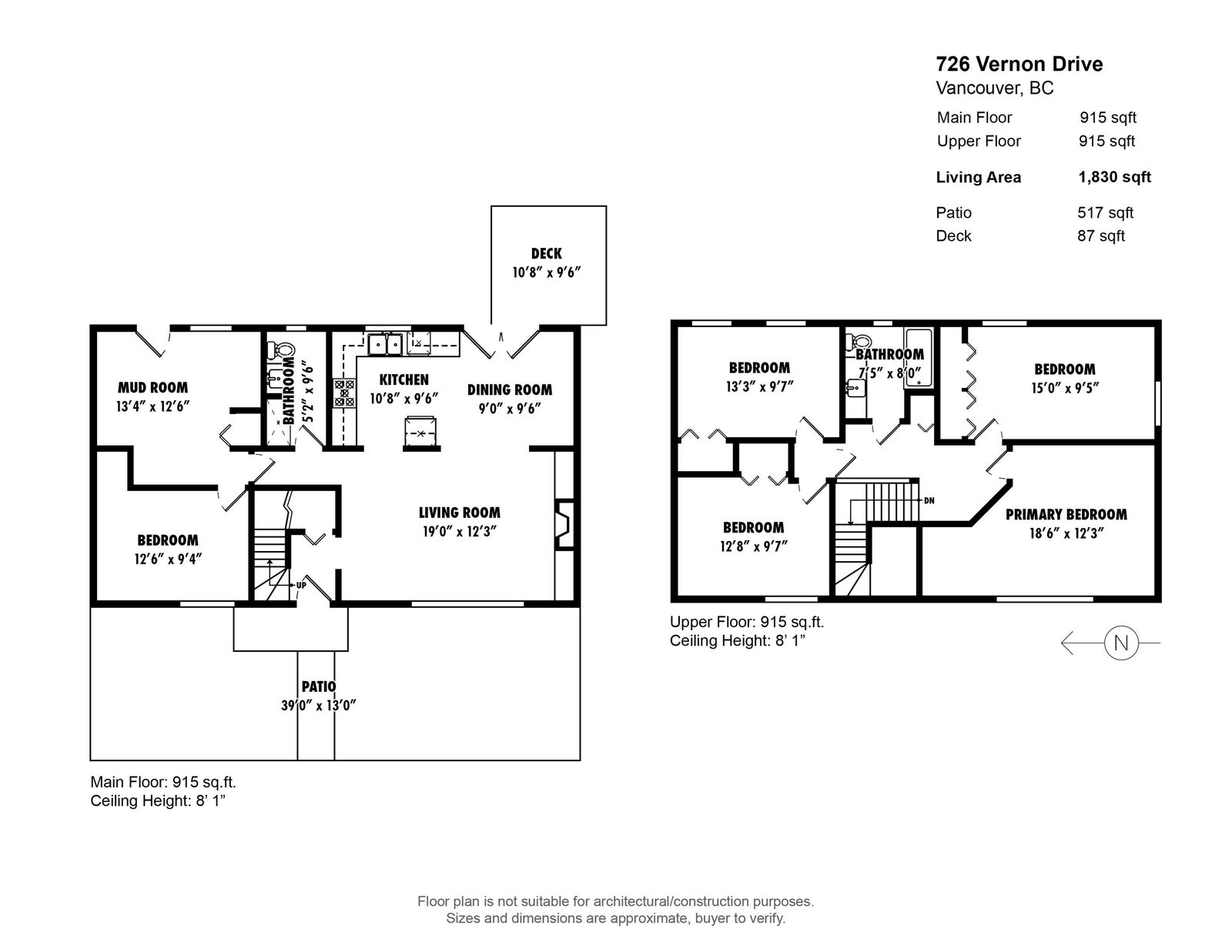
The perfect starter home does exist! Welcome to this charming 5-bedroom (4 beds up) home, thoughtfully renovated by the current owners. The main level features a spacious open-concept living, dining, and kitchen area. There’s also a large storage/ mud room, full bathroom and another bedroom. This area would make a great rental suite! Up you will find 4 more large bedrooms with updated carpets (2025) and a full bath. Newly updated windows (2021) fill the home with natural light, while the fully fenced backyard with a parking pad offers a sunny, private space for kids and pets. Conveniently located across from Admiral Seymour Elementary in the Kiwassa neighbourhood, and just minutes from Strathcona’s popular cafés.
Address
726 Vernon Drive
List Price
$1,599,000
Property Type
Residential
Type of Dwelling
Single-family-residence
Structure Type
Residential Detached
Transaction Type
Sale
Area
Vancouver East
Sub-Area
Strathcona
Bedrooms
5
Bathrooms
2
Floor Area
1,830 Sq. Ft.
Main Floor Area
915
Lot Size
2995 Sq. Ft.
Lot Size Dimensions
56 x 53.49
Lot Size (Acres)
0.07 Ac.
Lot Features
Central Location, Recreation Nearby
Lot Size Units
Square Feet
Total Building Area
1830
Frontage Length
56
Year Built
1981
MLS® Number
R3090410
Listing Brokerage
Oakwyn Realty Ltd.
Basement Area
None
Postal Code
V6A 3N9
Zoning
RT-3
Ownership
Freehold NonStrata
Parking
Open, Side Access
Parking Places (Total)
1
Tax Amount
$7,094.93
Tax Year
2025
Site Influences
Central Location, Recreation Nearby, Shopping Nearby
Community Features
Shopping Nearby
Appliances
Washer/Dryer, Dishwasher, Refrigerator, Stove
Board Or Association
Greater Vancouver
Heating
Yes
Heat Type
Baseboard, Electric, Radiant
Fireplace
Yes
Fireplace Features
Gas
Number of Fireplaces
1
Laundry Features
In Unit
Levels
Two
Number Of Floors In Property
2
Login To View 69 Additional Details On 726 Vernon Drive
Get instant access to more information (such as room sizes) with a free account.
Already have an account? Login