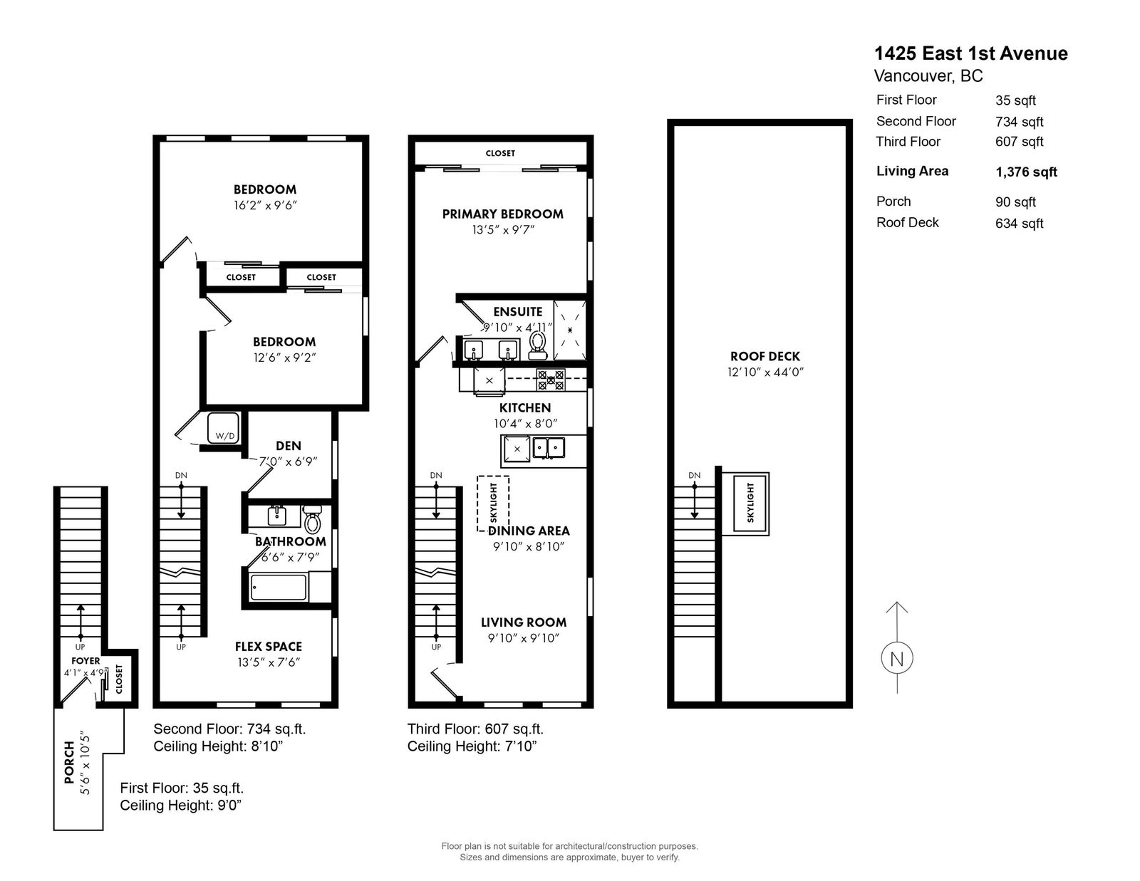
This three-bed, two-bath, den, and flex home at Grandview Cascades has it ALL! Comprised of over 2,000 SF of interior and exterior living space, this modern, corner townhome has the best layout in the complex and is steps to The Drive! The first level features 2 large bedrooms, a HUGE flex space, a full bath and a den. Up you will find the oversized primary bedroom with an ensuite, a well-laid out kitchen, and windows on three sides. Up again to the over 600 SF private roof deck, plumbed with gas, water and power. The City and North Shore Mountain views are unmatched, and the multiple sitting areas and outdoor pizza oven are a bonus! The complex is still under warranty and features a private storage locker & one secure parking stall.
Address
1425 E 1st Avenue
List Price
$1,289,000
Property Type
Residential
Type of Dwelling
Townhouse
Structure Type
Residential Attached
Transaction Type
Sale
Area
Vancouver East
Sub-Area
Grandview Woodland
Bedrooms
3
Bathrooms
2
Floor Area
1,376 Sq. Ft.
Main Floor Area
35
Lot Features
Central Location, Recreation Nearby
Total Building Area
1376
Year Built
2016
Maint. Fee
$644.01
MLS® Number
R2990199
Listing Brokerage
Oakwyn Realty Ltd.
Basement Area
None
Postal Code
V5N 1A4
Zoning
RM-4N
Ownership
Freehold Strata
Parking
Underground, Lane Access
Parking Places (Total)
1
Tax Amount
$3,241.25
Tax Year
2024
Pets
Cats OK, Dogs OK, Number Limit (Two), Yes With Restrictions
Site Influences
Balcony, Central Location, Recreation Nearby, Shopping Nearby
Community Features
Shopping Nearby
Exterior Features
Balcony
Appliances
Washer/Dryer, Dishwasher, Refrigerator, Cooktop
Interior Features
Storage
Association
Yes
Board Or Association
Greater Vancouver
Association Amenities
Maintenance Grounds, Hot Water, Management, Water
Heating
Yes
Heat Type
Baseboard, Electric
Garage
Yes
Laundry Features
In Unit
Levels
Two
Number Of Floors In Property
2
View
Yes
View Type
City and North Shore mountains
Subdivision Name
Grandview Cascades
Login To View 79 Additional Details On 1425 E 1st Avenue
Get instant access to more information (such as room sizes) with a free account.
Already have an account? Login